ST Design Studio + GOZO Napulitan Slow Food (ESP)
Proyectos Pizzería – Hamburguesería GOZO:







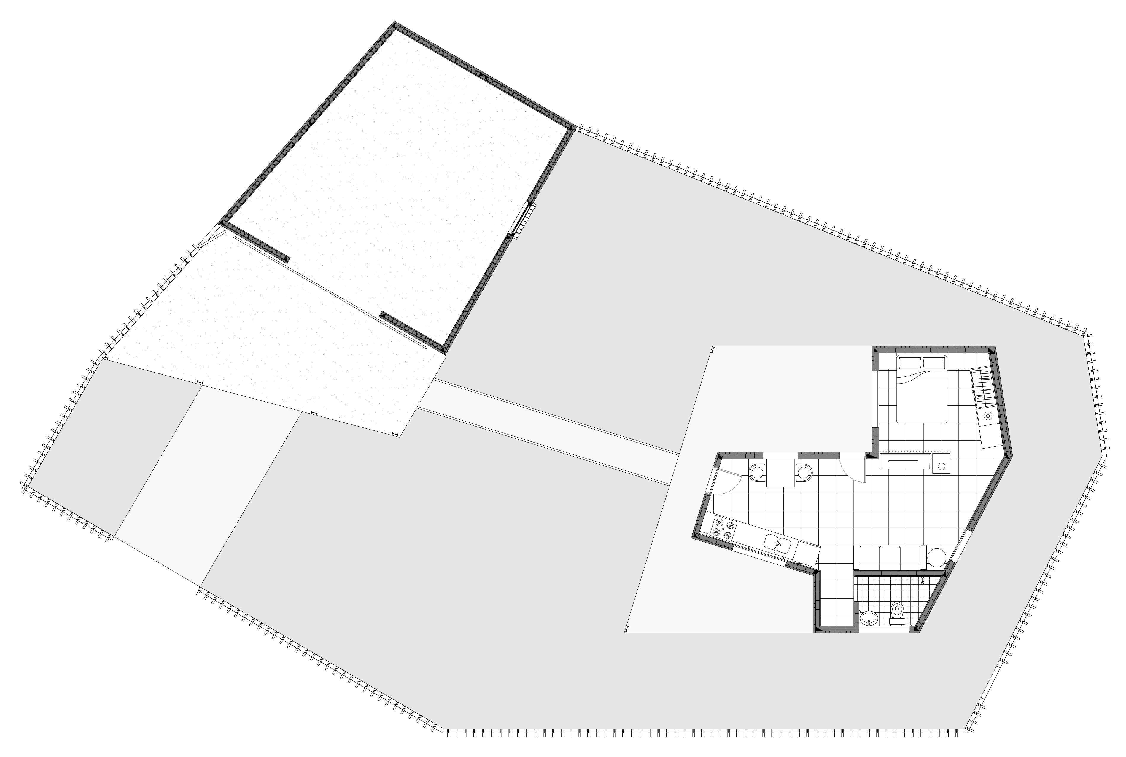
ST Design Studio + Casa Roberto Interiors (ITA – URU)
Proyectos: Casa Roberto Hotel Boutique – Casa Bruno Ignacio
En “Casa Roberto Interiors” colaboré con el fundador del estudio Roberto Begnini en los proyectos de interiorismo de dos casas antiguas en Montevideo que han sido publicadas en revistas nacionales e internacionales. En ambos casos hemos respetado la estructura original de los edificios y hemos destacado los elementos distintivos como las baldosas y suelos originales. En particular, Casa Roberto Hotel Boutique reúne una mezcla de diferentes estilos en sus cinco habitaciones. Para ver más fotos haga clic aquí.













ST Design Studio + Atmósfera Arquitectura (URU)
Prototipos de viviendas industrializadas
En el estudio “Atmosfera” diseñé, junto a otros compañeros, una serie de prototipos de viviendas con diferentes materiales y procesos constructivos, en particular, me encargué del proyecto del prototipo Aguda, que tiene la madera como componente fundamental, como material local y eco-sostenible, además los techos tienen una gran pendiente para recoger el agua de lluvia y poder reutilizarla.
La estructura, conformada por elementos industrializados como paneles de madera contrachapada para el revestimiento interior y tableros de madera de diferentes espesores para el revestimiento de la fachada, fue diseñada para reducir los tiempos de construcción y facilitar la sustitución.












Laboratorio de arquitectura colaborativa (Rivera Uruguay) – Galpón Multiuso
Durante el primer semestre de 2017 construimos una nave polivalente de 216 m2, y aprovechando esta obra creamos un laboratorio de arquitectura colaborativa, para aplicar una metodología de construcción y diseño diferente, que sensibilice a las personas sobre el tema de la construcción colectiva, también reutilizando materiales reciclados locales (como residuos de madera de grandes industrias). El objetivo era involucrar a instituciones públicas, organizaciones civiles y ciudadanos en un mismo proyecto, para que este proceso pudiera ser aplicado en el futuro en los barrios de la ciudad de Rivera para dar respuesta a necesidades específicas de la comunidad.
La estructura hecha con vigas y pilares de acero soporta módulos verticales obtenidos del ensamblaje de tableros de madera desechados por las industrias locales, conformando fachadas con diseños y texturas inusuales, que recuerdan la constitución de tableros laminados finger-joint.















Festival de la Madera – (Rivera Uruguay) – proyecto “Zona de juegos inclusivos”
El Festival de la Madera tuvo lugar en Diciembre de 2018, con el objetivo de potenciar la madera (en particular el eucalipto) como producto local para, a través del diseño y la arquitectura, promover su uso y así contribuir al desarrollo de toda la cadena de producción y relacionarse especialmente con los carpinteros y constructores locales.
Durante el Festival se realizaron tres talleres dirigidos por estudios de arquitectura nacionales e internacionales: “Vivero” de Zuloark (España), “Kiosko” de Hello Wood (Hungría) y “Zona de juego” de Atmósfera (Italia – Uruguay).
El laboratorio de Atmósfera diseñó y construyó conjuntamente con los participantes un prototipo de juegos infantiles inclusivos que se podrían instalar en las plazas y espacios públicos de la ciudad en el futuro. Se presentó el diseño de un módulo de geometría trapezoidal, previamente diseñado por el estudio, y una metodología de diseño colectiva, que permitió la configuración del dispositivo a partir del ensamblaje de los módulos creados durante el Festival, con la adición final de elementos reciclados que definieron su función lúdica.









El proyecto “Zona de juegos” fue seleccionado previamente por el Fondo Concursable para la Cultura de Montevideo en la categoría Diseño, ya que contiene la idea de que los módulos pueden ser construidos por internos del penal de Cerro Carancho (Rivera), dado que uno de sus objetivos es la creación de un vínculo simbólico entre los presos y la sociedad, permitiendo mediante acciones concretas redimensionar el valor del preso para la ciudadanía y favorecer su futura integración en la sociedad.
Por ello, veinte de los cuarenta módulos construidos durante el festival fueron realizados por los internos de la prisión.
Laboratorio de participación ciudadana MVD Labs (Montevideo, Uruguay) – Proyecto “Tu Barrio Tu Juego”
Durante el mes de Mayo de 2019 fui promotora, junto a mis compañeros del estudio ATMOSFERA-de arquitecturas y afines, del proyecto “Tu Barrio-Tu Juego” que fue seleccionado por la Intendencia de Montevideo ( Uruguay), junto con otras nueve propuestas, para ser estudiadas, desarrolladas y construidas durante un taller de colaboración ciudadana de diez días.
Se trataba de llevar el proyecto de un prototipo de JUEGOS MODULARES INCLUSIVOS PARA NIÑOS desde el dibujo sobre papel, hasta la experimentación con maqueta a escala 1:10, hasta llegar a la escala completa 1: 1 con la consiguiente instalación en el territorio.









Casa Casero + Galpón. (Balneario Santa Ana, Uruguay)
El proyecto incluye la construcción de una casa campesina y un galpón para guardar herramientas de trabajo.
El sistema constructivo combina tecnologías locales, como muros de ladrillo, y tecnologías industrializadas, como vigas y pilares de acero y paneles de revestimiento interior de madera.
El diseño se desarrolló tomando como referencia la tipología de casa de campo tradicional del área rural uruguaya, la cual ha sido revisada en clave contemporánea, especialmente en geometría, siguiendo los principios del “passive-design”.









Laboratorio de autoconstrucción, proyecto “Big Pallet” (Rivera, Uruguay)
Big Pallet es el resultado del primer laboratorio colaborativo de arquitectura, que marca el inicio de una serie de intervenciones arquitectónicas, paisajísticas y de mobiliario urbano que se llevaron a cabo de forma colaborativa en Campo Abierto.
Durante tres intensas jornadas de trabajo, trabajamos en conjunto con tres trabajadores del centro, y como equipo de proyecto, nos marcamos el objetivo de recomponer física y simbólicamente un edificio abandonado ubicado en el centro del territorio que en el pasado funcionó como Juzgado de Paz. de Tacuarembó, para que pueda ser utilizado como lugar para diferentes actividades al aire libre.
La madera utilizada para la construcción fue donada por los pequeños carpinteros de la zona, especializados en la construcción de pallets, a partir de esta referencia y para el sistema constructivo adoptado, denominamos a la plataforma “Big Pallet”.





Proyecto “Museo della Cultura Contadina” – año 2011
Licenciatura en Arquitectura, Diseño de Interiores y Design, Facultad de Arquitectura “Federico II” Nápoles, Italia
Proyecto de Tesis final de carrera: Museo + Biblioteca + Exposición Multimedial, localizado en Marcianise (Caserta)

Proyecto “Estructuras temporales para la Rambla de Montevideo” – año 2015
Licenciatura en Diseño arquitectonico y Proyecto (MAPA), Facultad de Arquitectura “Federico II” Nápoles, Italia
Proyecto de Tesis final de carrera: Mercado de Los Artesanos + Modulo museo / Expo

Propuesta para el Festival de Intervenciones Urbanas (FIU) de Montevideo : BIOMBO
BIOMBO es una estructura temporal diseñada específicamente para actividades con niños, un elemento móvil que se puede programar para ubicarse en espacios públicos de la ciudad, plazas, calles peatonales, parques, durante determinados eventos o festivos que incluyan diferentes actividades a realizar.
En su modo de forma abierta se visualiza como un dispositivo arquitectónico que según la programación puede ser utilizado generando diferentes configuraciones y en su modo de forma cerrada, como un tótem de escultura / información que también puede ser utilizado como contenedor de objetos utilizados durante las actividades.

La configuración del dispositivo combina dos elementos: una subestructura de madera que mantiene la estructura principal compuesta por 5 módulos-paneles, que se mueven sobre bisagras colocadas entre ellos, generando diferentes configuraciones formales; y junto con 40 envases de plástico de 200 l (reciclados), cortados de diferentes formas para colaborar con la configuración espacial del dispositivo y también ser utilizados como elementos de refuerzo y bloqueo de la estructura.






Diseño de mueble modular “M3”



